Pokeno 10 DOLCETTO PLACE

Enquire Now
< >

For Sale
By Negotiation

Brand New 5 Beds Home (3+2 Setup), Under-Construction!

5 3 4

Open Times

  • Please contact Kam Grover to arrange an appointment.

Share This Property


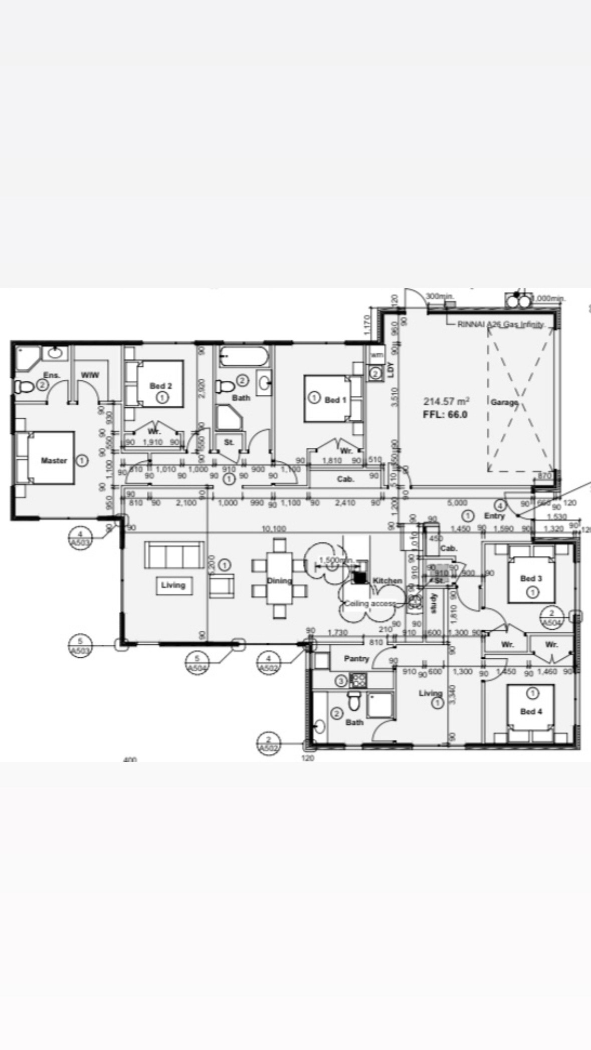
Currently under construction and due for completion by New Year 2026, this brand-new home offers the perfect combination of space, style, and practicality. Set on a 559sqm freehold section with a 214sqm floor plan, it's been thoughtfully designed for modern family living with low-maintenance appeal.

Key Features:

*5 Bedrooms & 3 Bathrooms – Ideal for large or extended families, providing both comfort and flexibility.

*Designer Kitchen + Second Kitchenette – Main kitchen with premium appliances and cabinetry, complemented by a second kitchenette for entertaining or multi-generational living.

*Generous Open-Plan Living Areas – Seamlessly designed spaces with central air-conditioning to keep the whole home comfortable year-round.

*Luxurious Bathrooms – Fully tiled and finished with underfloor heating for everyday comfort.

*High 2.7m Ceilings – Enhancing natural light and creating a sense of openness throughout.

*Smart Home Features – Including a digital door lock and stylish LED mirrors for modern convenience.

*Double Internal Garage with Laundry Space – Secure parking plus cleverly integrated functionality.

*Outdoor Entertaining Deck – A great spot for barbecues, family gatherings, or simply relaxing outdoors.

*Low-Maintenance Section – Fully fenced for privacy and security, designed to keep upkeep simple.

Conveniently located in a peaceful cul-de-sac close to schools, shops, and motorway access, this property combines modern living with community lifestyle.

With demand high and new builds in Pokeno becoming harder to find, this is your chance to buy before completion and move into a brand-new home in early 2026. Contact us today to secure this opportunity before it's gone.

Property Information

  • Land area approx 559sqm
  • Floor area approx 214sqm

Property Features

  • Air Conditioning
  • Garages 2
  • Uncovered Carspaces 2
Century 21 Pro Realty Pro Realty
Licensed under the REAA 2008
48 Market Street
Pokeno 2402